Idrottsvägen 5
Bjuv, Bjuv
Unik renoverad fastighet
Nu finns det möjlighet att förvärva ett hus av kvalitet på Idrottsvägen. Ett unikt hem med energi klass A. Driften är väldigt låg. Idag baseras den på 6 personer. Husen på denna gata har tidigare varit företags hus vilket innebär att de har stora tomter med många möjligheter. Huset har genomgått en stor renovering år 2019 då hela bottenvåningen renoverades med förändringar i planlösningen och med många fina materialval. Även fönstren byttes till 3-glas och åren därpå installerades både solceller och ny luft/vatten värmepump vilket idag ger huset låga driftskostnader. Hemmet har idag energi klass A vilket är väldigt ovanligt. När du välkomnas in möts du av ett vackert klinkergolv i hallen med golvvärme. Du känner värmen direkt i dina fötter när du kliver in på golvet och det bästa av allt är att den är vattenburen. Till vänster finns ett stort vardagsrum med ett vackert vitlaserat parkett golv och infällda spotlights i hela taket. Självklart har de LED. Samtliga fönster är bytt och du kan öppna dem i ovankant om du vil ha in lite extra luft. Ett stort härligt rum som har plats både för soffa och matsalsbord. Köket ligger perfekt sidan om vardagsrummet och har många fina inredningsval med stenbänkskiva och självrengörande ugn. Även här finns klinker på golvet och spotlights i tak. Ett stort kök med mycket bänkyta och många skåp. För att lyxa till det lite mer har de även en vit induktionshäll som smälter in med den vackra stenskivan. Tre sovrum finns på bottenplan varav ett lite större som idag är masterbedroom. I närhet till dessa finns badrummet som också är renoverat. Ett modernt och snyggt badrum med dubbelkommod och badkar. Källaren finns en våning ned. I gillestugan som du kommer ner till finns en öppen spis. Mysigt att kunna tända en brasa. Ett perfekt utrymme att ha som tv-rum. Hela denna våning är på 110 kvm och här finns både sovrum, förråd, gäst wc, dusch och tvättstuga. Denna våningen är inte lika renoverad som bottenplan och du behöver troligen måla om lite väggar. Här finns alla möjligheter att skapa det perfekta boendet för dig. Ett hem för dig som bara vill flytta in och bara njuta. Snyggt och fräscht med många möjligheter. Tomten är större än normalt. Både häck och staket finns runt om tomten och här kan du skapa din perfekta trädgård och kanske till och med ha en egen pool och varför inte ett Attefallshus som kan funka både som kontor och gästhus. Observera att bilderna som visas är både förra ägarens samt nytagna. Välkommen till ditt nya hem.
Visningar
-
16decembertisdagkl 17:30 - 18:00Välkomna. Bokade visningar. Anmäl via hemsida eller smsKlicka här för att boka
Fakta
Utgångspris
Fast.beteckning:
Bjuv 3:21
Rum
5 st
Sovrum
3 st
Boarea
110 m²
Biarea
110 m²
Tomtarea
1 369 m²
Byggnadstyp
1-plansvilla i vinkel med källare
Byggnadsår
1970
Dokument
Länkar
Fastighetsmäklare
Vägbeskrivning
Ligger mitt emot Bjuvs Bowling hall med lätthet tar du dig ut på väg 110. Buss ca 350 m och tåg finns i Bjuv C. Med bil: Bjuv Station ca 2 km, Helsingborg ca 19,9 km ca 20 min, Lund ca 55, 3 km ca 49 min, Malmö 64,3 kvm ca 53 min.
Tillträde
Ca 3 månader eller enligt överenskommelse.
Interiör
Supertrevligt hus med källare som är renoverat under 2019/2020. Stor trädgård med många möjligheter samt garage. Solceller installerades 2021 och även ny luft/vatten värmepump (2020). Sovrum i källare installerades en luft/luft-värmepump 2023. Hela bottenvåningen har vattenburen golvvärme.
Rum
-
Hall
Du välkomnas in i hallen där det ligger ett vackert klinker på golvet som har vattenburen golvvärme. Mysigt att sätta fötterna på. Till höger finns det möjlighet att hänga av dig dina kläder. Väggarna är målade och i taket finns LED spotlights.
-
Kök
Köket är renoverat 2019 och har samma klinker på golvet som i hallen. Även här finns spotts i taket. Ett svart kök från Ikea med stenbänkskiva och vitrinskåp som överskåp. Ett stort härligt kök med mycket bänkyta. Vasken är placerad vid fönstret där du har full överblick över trädgården. Blandaren i vasken är av mässing. Alla vitvaror är inköpta 2019 och här har man satsat på kvalitet. Ugnen är pyrolytisk dvs självrengörande, diskmaskinen är helintegrerad och av högre kvalitet, induktionshäll som är vit för att matcha bänkskivan samt infälld fläkt och kyl/frys i rostfritt. På vägg mellan bänskåp och överskåp finns samma stenskiva som ligger som bänkskiva. Snyggt och estetiskt. Det finns en naturlig matplats vid glaspartiet som tar dig ut till husets uterum. Här har man satt in en skjutdörr istället för en vanlig dörr som ger ett ljus in i bostaden men även att du får bättre kontakt med uterummet.
-
Vardagsrum
Ett stort härligt vardagsrum med mycket yta. Snyggt vitlaserat parkett och målade väggar och förutom detta finns spotlights i hela taket och självklart är dem i LED. Här är gott om plats och du möblerar helt och hållet efter tycke och smak. Det bästa av allt är att du har vattenburen golvvärme och det finns med andra ord inga element.
-
Sovrum 1
Detta sovrum ligger sidan om badrummet. Ett nästan fyrkantigt rum i bra storlek. Laminat på golvet och en fondtapet på väggen samt målade väggar. Passar perfekt som sovrum.
-
Sovrum 2
Masterbedroom har ekplank i laminat på golvet och målade väggar. På vägg mot sovrum 1 finns en fristående garderob som blir kvar. Denna är i ek och passar perfekt till golvet. Fönster finns mot Idrottsvägen.
-
Sovrum 3
Det sista sovrummet på detta plan. Detta rum har använts som typ walk-in-closet och det finns en stor garderob som tar mycket av utrymmet. Laminat på golvet och målade väggar. Passar som ett mindre sovrum eller kontor. Garderoben går att ta bort om man vill ha mer plats.
-
Badrum
Ett oerhört fint och exklusivt badrum. Snygga plattor på golv och vägg. Modernt badkar och en fin dubbelkommod med spegelskåp. Självklart finns det vattenburen golvvärme även här och spotlights i tak.
-
Trappa
Trappa med heltäckningsmatta på trappasteg och glasskiva mot hall. I taket ned finns spotlights.
-
Källare
En våning ned finns källaren som du kan skapa efter tycke och smak. Även denna yta är 110 kvm och här finns alla möjligheter att skapa ditt drömboende.
-
Gillestuga
När du kommer ner för trapporna kommer du rakt in i gillestugan eller allrummet. Ett stort härligt rum som passar perfekt som tv-rum. Laminat på golvet och putsade väggar. Här går det att koppla in även vattenburen golvvärme och då lägger du med fördel klinker på golvet. För att göra det ännu mysigare finns en öppen spis med kassett och sidan om en del där du kan förvara din ved.
-
Matkällare
Ett mindre rum som funkar både som matkällare och förråd. Betonggolv och målade väggar.
-
Klädkammare
Ungefär lika stort som matkällaren. Perfekt med extra förvaring. Även här är det betonggolv.
-
Förråd
Innanför matkällare och klädkammare finns ett större förråd. Här kan du också ta dig upp till trädgården via en trappa på husets gavel.
-
WC
Ett gästwc finns med wc och en mindre kommod och plastmatta på golvet. Denna ligger i källaren
-
Hobbyrum/Sovrum 4
Ett stort rum som idag fungerar som sovrum. Här är man också installerat en luft/luft.
-
Badrum
En extra dusch finns i källaren. Ett rum som du kan renovera och skapa som ett komplett badrum. Två handdukstorkar i el finns på vägg mot hall och hobbyrum.
-
Grovkök
Tvättstugan finns i källaren. Tvättmaskin finns samt en vask sidan om. Betonggolv
-
Förråd 2/pannrum
Detta förråd ligger bakom grovköket. Här står värmepumpen luft/vatten - NIBE WM S320. Perfekt rum att kunna torka dina kläder. En Paxfläkt finns.
-
Uterum
Bakom vardagsrummet finns ditt uterum. Du når det via köket. Ett stort uterum som är som ett komplett rum. Tak och fönster med betongplatta på golvet.
-
Trädgård
Huset har en stor tomt. Du har trädgård både på framsida och baksida och det finns en allmänning ut mot Idrottsvägen. På framsidan har du både asfalt uppfart och gjutenplatta med belysning samt ett extra tak framför entrén och även över källaringång. Vacker belysning även vid trappstegen upp till entrédörren samt i utstickande entrétak. Runt hela huset finns sten vilket är det bästa för en källare. På baksidan har du en stor tomt/gräsmatta som är inramad med staket och tuhja häck. Hela 400 plantor är planterade. En tomt som du kan skapa helt efter tycke och smak. Ligger pool på din önskelista så finns möjligheten. Även ett Attefallshus är möjligt. En trädgård som går att göra fantastisk fin. Äppelträd finns samt körsbärsträd från Serbien.
-
Garage
Till vänster om huset finns ditt garage. Även detta har tegelfasad. Taket är plåttak. En extra kontroll behövs då lutningen är låg. Betonggolv och fönstret är bytt när övriga fönster byttes. Garageporten är elektrisk. På sidan av garaget finns en vattenutkastare.
-
Mäklaren
Susanne Durgaram heter jag som är mäklare på detta objekt. Har jobbat några år i de större kedjorna och startade upp i egen regi augusti 2022. Jag är en engagerad och kompetent mäklare som alltid vill göra det där lilla extra. Jag har anknytning till orten då jag har bott 2 hus ifrån detta hus och har även bott på Mörarpsvägen. Vill ni också veta vad ert hus är värt eller vill veta hur en försäljning går till. Tveka inte att ta kontakt. Besök gärna min hemsida.
Tomt
Stor härlig tomt i söderläge med häck och staket.
Uterum finns.
Planbestämmelser
Detaljplan (1999-10-28)
Bilplats
Garage och stenlagd parkeringsplats framför garaget.Bredband
Fiber installerad 2018.
Ventilation
Självdrag, Fönster går att öppna i överkant.
Vatten och avlopp
Kommunalt vatten året om. Kommunalt avlopp.
Energideklaration
Utförd
Utförd: 24/3 2023
Klass
A
Förbrukning
24 kWh/kvm per år
Elektricitet
Leverantör
Öresundskraft
Förbrukning
6 562 kWh/år
Drift per år
Vatten/avlopp
15 222 kr
Elförbrukning
17 139 kr
Renhållning
2 625 kr
Summa
34 986 kr
Taxeringsuppgifter
Typkod
220, Småhusenhet, bebyggd.
Totalt
1 766 000 kr
Byggnad
1 254 000 kr
Mark
512 000 kr
Skatt/avgift
10 074 kr
Taxeringsår
2024
Värdeår
1970
Pantbrev
Summa
2 380 000 kr
Antal
9 st
Närområde
Bjuv är en tätort belägen strax öster om Helsingborg. Ursprungligen verkade orten som ett gruvsamhälle och växte därför relativt fort under 1800-talet. Sista kolgruvan stängdes 1979 och idag finns det endast ett gruvmuseum kvar som bevarar historiken. Idag är Bjuv en populär ort att bosätta sig på. Beläget centralt mellan flera olika orter med goda förbindelsemöjligheter men också närhet till den vackra naturen Söderåsen har att erbjuda. Friluftsaktiviteter och vandringsstigar, eller varför inte ett parti golf i Lydinge eller på Söderåsens GK. Hedvalla idrottsplats har gott om utrymme för aktiviteter där inräknat både fotbollsplan, tennis och bowlinghall.
Parkering
Goda parkeringsmöjligheter runt om i byn.
Kommunikation
Bjuv är placerat väldigt centralt mellan Billesholm, Ekeby, Hyllinge och Åstorp vilket är ett stort plus när det kommer till kommunikation och förbindelser till och från orten. Tågresor med pågatåg från Helsingborg C till Bjuv Station går frekvent (ca 30minuter) och resan beräknas ta 17 minuter. Samma sträcka beräknas ta ungefär lika långtid via E4/E6 med bilfärd.
Närservice
I centrum finner du ett utbud av flertalet butiker, där inräknat apotek, livsmedelsbutiker, restauranger och kaféer. Bra med alternativ för utbildning för barnen med både förskolor och grundskolor upp till årskurs 9. Utöver detta finns även Bjuvs Lärcentrum som erbjuder utbildning och vägledning för vuxna. En kort bilfärd och du är vid först Hyllinge och vidare Väla där allt du kan tänka dig behöva finns till ditt förfogande.
Byggnad
Typ
1-plansvilla i vinkel med källare
Byggår
1970
Bjälklag
Trä
Utv plåtarbete
Lackerad plåt
Fasad
Tegel/trä
Grund
Källare
Grundmur
Betong
Stomme
Trä
Uppvärmning
Luft/vatten samt öppen spis
Tak
Tegel
Fönster
3-glas, vikbara tippfönster
Renoveringar
2018 - Fiber installerat 2019 - Bytt fönster på hela bostaden 2019 - Helrenoverat hela bottenplan, nya golv, nytt kök, nytt badrum, spotts i tak 2019 - Ny elcentral på bottenplan och källare 2020 - Installerat värmepump luft/vatten 2020 - Nytt staket runt tomten, planterat häck runt tomten. 2021 - Solceller tak 20 st 2021- Nya fogar på fasad och behandlat fasad med Superleats som gör att smuts rinner av 2021 - Nytt tak på uterum - plåttak 2021 - Nya vingskenor och tätat med isolering. Tak tvättat och målat men ej bytt. 2021 - Nya rännor och stuprör 2021 - Nytt plåtlock över skorstenen 2023 - Installation av luft/luft värmepump i sovrum källare.
Övriga byggnader
Uterum och garage
Karta
Bilder
Läckra detaljer
Ett hem för njutning
Trevlig gillestuga i källaren
Trevligt uterum
Husets baksida med solceller
www.rdi.se
Med vy mot kök
Hall och vardagsrum
Trevligt kök med klinker på golvet
Kök
Fräck induktionshäll
Kök med y mot vardagsrum
Glasdörr samt självrengörande ugn
Gott om plats
Här kommer säkert bli din favorit plats
Stort härligt vardagsrum med infällda spotts i tak
Här kan du möblera efter tycke och smak
Med vy mot köket
Sovrum 1 med fönster mot trädgården
Masterbedroom
Masterbedroom med vy mot hall
Sovrum 3 passar som sovrum/kontor
Snyggt och fräscht badrum
Välkomnade hall
Trappa med mata på stegen
Allrum i källaren
Perfekt som tv-rum
Stor gillestuga med öppen spis
Sovrum i källaren med luft/luft
Dusch källare
WC källare
Husets framsida
Idrottsvägen 5
Infälld belysning i plattan
Egen ingång till källaren
Trädgård med vy mot uterum
Uterum och fruktträd
Härlig trädgård
Uterum
Trädgård med äppelträd
Stor härlig trädgård
Stor härlig tomt - se solcellerna på taket - Energiklass A
Garage och asfalterad uppfart
Belysning på gång och trappa
Garage
Granne med Bowlinghallen
Fastighetskarta
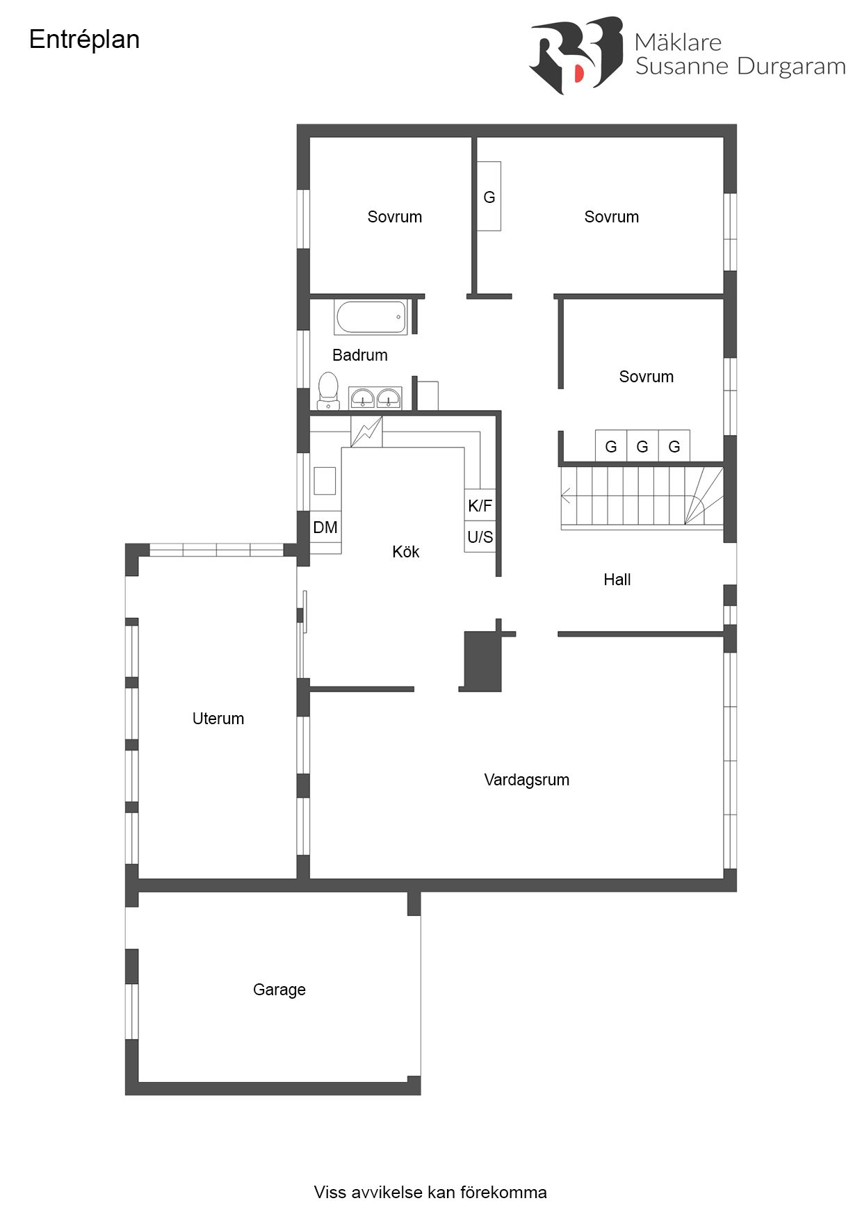
Planlösning bottenvåning
Planlösning källarplan
Mäklare Susanne Durgaram